Misato Waseda Park Heights| 4LDK|Misato早稲田

Misato Waseda Park Heights| 4LDK|Misato早稲田

  • UR
  • NO KEY MONEY

間取り画像

▲ Click to enlarge(All 3 images

Address Waseda Misato Saitama7
Access JR Musashino Line Misato Station + 17 minutes walk
JR Musashino Line Misato Station 3 minutes bus ( to『早稲田七丁目南』 bus stop) + 1 minutes walk
JR Musashino Line Shin Misato Station + 25 minutes walk
Rent 100,800円
Security Deposit 2 months Gratuity fee 0 month
Renewal fee 0 month Deposit -
Free rent - Common service fee 3,300円
Brokerage fee 0 month Total Unit 487
Floor 1F Building age 39年~40年
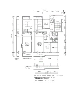
Layout 4LDK Size(sq. m) 93㎡
Parking 平面 空き台数:10台 料金:8,250円近隣駐車場のご案内・三郷早稲田パークハイツ第二
Japanese Site 三郷早稲田パークハイツ
Building feature
  • Pet available
  • CATV
  • Optical wiring
Room feature
  • Drop-in stove
  •  Automatic hot water filling function
  • Screen Door
  • Air conditioner
  • Bath and toilet are separated
  • Auxiliary Heater
  • Balcony

※ Facilities vary by room/building

Map

この物件の他の空室一覧

Floor plan Condition Floor / Story Rent Layout
Size(sq. m)
Available 3F 105,900円 4LDK
98㎡
Room details
Bookmark
Available 3F 96,300円 3LDK
77㎡
Room details
Bookmark