Jindai(#3)| 2LDK|Chofu西つつじケ丘

Jindai(#3)| 2LDK|Chofu西つつじケ丘

  • UR
  • NO KEY MONEY

間取り画像

▲ Click to enlarge(All 5 images

Address Nishi-Tsutsujigaoka Chofu Tokyo4-23
Access Keio Line KO14 Tsutsujigaoka Station + 15 minutes walk
Odakyu Odawara Line Seijo Gakuen Mae Station 14 minutes bus ( to『神代団地中央』 bus stop) + 10 minutes walk
Rent 141,100円
Security Deposit 2 months Gratuity fee 0 month
Renewal fee 0 month Deposit -
Free rent - Common service fee 4,900円
Brokerage fee 0 month Total Unit 70
Floor 2F Building age 38年
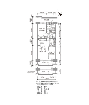
Layout 2LDK Size(sq. m) 66㎡
Parking
Japanese Site 神代(59号棟)
Building feature
  • CATV
  • BS
  • Optical wiring
  • Elevator
  • Surveillance camera
Room feature
  •  Automatic hot water filling function
  • Internet ADSL
  • Air conditioner
  • Bathroom Dryer
  • Bath and toilet are separated
  • Auxiliary Heater
  • Balcony

※ Facilities vary by room/building