Nara Kidera| 3DK|Nara東紀寺町

Nara Kidera| 3DK|Nara東紀寺町

  • UR
  • NO KEY MONEY

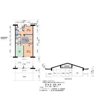
間取り画像

▲ Click to enlarge(All 8 images

Address Higashi-Kiderachou Nara Nara1丁目
Access JR Sakurai Line Kyobate Station + 11 minutes walk
Kintetsu Nara Line Kintetsu Nara Station 8 minutes bus ( to『紀寺住宅前』 bus stop) + 2 minutes walk
JR Kansai Main Line Nara Station 12 minutes bus ( to『紀寺住宅前』 bus stop) + 2 minutes walk
Rent 77,200円
Security Deposit 2 months Gratuity fee 0 month
Renewal fee 0 month Deposit -
Free rent - Common service fee 4,760円
Brokerage fee 0 month Total Unit 252
Floor 5F Building age 23年
Layout 3DK Size(sq. m) 59㎡
Parking 平面 空き台数:5台 料金:7,370円自走 空き台数:12台 料金:6,710円
Japanese Site 奈良・紀寺
Building feature
  • CATV
  • LAN in residential building
  • Elevator
  • Surveillance camera
Room feature
  •  Automatic hot water filling function
  • Floor Heating
  • Bath and toilet are separated
  • Auxiliary Heater
  • Balcony

※ Facilities vary by room/building