間取り画像
▲ Click to enlarge(All 9 images)
| Address | Mukoudaichou Nishi-Tokyo Tokyo5-4-1 | ||
|---|---|---|---|
| Access |
Seibu Shinjuku Line
『
SS17 Tanashi Station
』
+ 12 minutes walk
|
||
| Rent | 113,500円 | ||
| Security Deposit | 2 months | Gratuity fee | 0 month |
| Renewal fee | 0 month | Deposit | - |
| Free rent | - | Common service fee | 2,900円 |
| Brokerage fee | 0 month | Total Unit | 126 |
| Floor | 4F | Building age | 40年 |
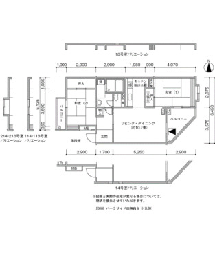
| Layout | 2LDK | Size(sq. m) | 72㎡ |
| Parking | 駐車場 空きなし | ||
| Japanese Site | パークサイド田無向台 | ||
| Building feature |
|---|
|
|
| Room feature |
|
|
※ Facilities vary by room/building
| Floor plan | Condition | Floor / Story | Rent | Layout Size(sq. m) |
|
|---|---|---|---|---|---|
|
|
Available | 5F | 121,200円 |
2LDK 72㎡ |
Room details
Bookmark |