Green Maison Hirado| 3LDK|Totsuka-Yokohama平戸

Green Maison Hirado| 3LDK|Totsuka-Yokohama平戸

  • UR
  • NO KEY MONEY

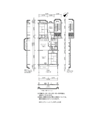
間取り画像

▲ Click to enlarge(All 8 images

Address Hirado Totsuka-Yokohama Kanagawa1-2
Access JR Yokosuka Line Higashi Totsuka Station 12 minutes bus ( to『平和台』 bus stop) + 2 minutes walk
JR Yokosuka Line Hodogaya Station 17 minutes bus ( to『平和台』 bus stop) + 2 minutes walk
Yokohama Municipal Subway Blue Line B14 Yoshinomachi Station 29 minutes bus ( to『平和台』 bus stop) + 1 minutes walk
Rent 101,600円
Security Deposit 2 months Gratuity fee 0 month
Renewal fee 0 month Deposit -
Free rent - Common service fee 4,900円
Brokerage fee 0 month Total Unit 121
Floor 2F Building age 41年
Layout 3LDK Size(sq. m) 85㎡
Parking 駐車場 空きなし
Japanese Site グリーンメゾン平戸
Building feature
  • CATV
  • BS
  • Optical wiring
Room feature
  •  Automatic hot water filling function
  • Air conditioner
  •  Intercom with monitor
  • Bath and toilet are separated
  • Auxiliary Heater
  • Balcony

※ Facilities vary by room/building