Le zephyr Tachibana| 3LDK|Amagasaki西難波町

Le zephyr Tachibana| 3LDK|Amagasaki西難波町

  • UR
  • NO KEY MONEY

間取り画像

▲ Click to enlarge(All 3 images

Address Nishi-Naniwachou Amagasaki Hyogo一丁目1番
Access JR Kobe Line Tachibana Station + 12 minutes walk
Hanshin Main Line Amagasaki Station + 32 minutes walk
Hankyu Kobe Line Mukonoso Station 10 minutes bus ( to『浜浦町』 bus stop) + 7 minutes walk
Rent 118,500円
Security Deposit 2 months Gratuity fee 0 month
Renewal fee 0 month Deposit -
Free rent - Common service fee 4,700円
Brokerage fee 0 month Total Unit 121
Floor 4F Building age 26年~27年
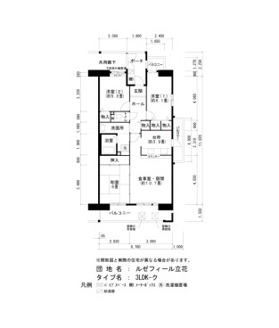
Layout 3LDK Size(sq. m) 79㎡
Parking 機械 空き台数:19台 料金:12,980円~14,410円
Japanese Site ルゼフィール立花
Building feature
  • CATV
  • BS
  • Optical wiring
  • Elevator
  • Surveillance camera
Room feature
  •  Automatic hot water filling function
  • Separate kitchen
  • Bath and toilet are separated
  • Balcony

※ Facilities vary by room/building