Chiba New Town Harayama| 4LDK|Inzai原

Chiba New Town Harayama| 4LDK|Inzai原

  • UR
  • NO KEY MONEY
Address Hara Inzai Chiba山3-8
Access Hokuso Line Chiba New Town Chuo Station 5 minutes bus ( to『原山三丁目』 bus stop) + 1 minutes walk
Hokuso Line Inzai Makinohara Station 10 minutes bus ( to『原山三丁目』 bus stop) + 1 minutes walk
JR Narita Line Kioroshi Station 11 minutes bus ( to『原山三丁目』 bus stop) + 2 minutes walk
Rent 78,100円
Security Deposit 2 months Gratuity fee 0 month
Renewal fee 0 month Deposit -
Free rent - Common service fee 5,400円
Brokerage fee 0 month Total Unit 390
Floor 4F Building age 35年~39年
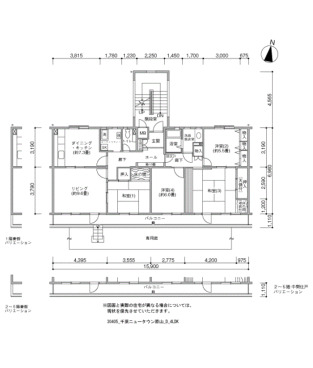
Layout 4LDK Size(sq. m) 110㎡
Parking 平面 空き台数:2台 料金:5,720円
Japanese Site 千葉ニュータウン原山
Building feature
  • CATV
  • BS
  • Optical wiring
Room feature
  • Screen Door
  • Shoes box
  • Bath and toilet are separated
  • Auxiliary Heater
  • Balcony

※ Facilities vary by room/building