Takatsu(Dai1)| 3K|Yachiyo高津

Takatsu(Dai1)| 3K|Yachiyo高津

  • UR
  • NO KEY MONEY

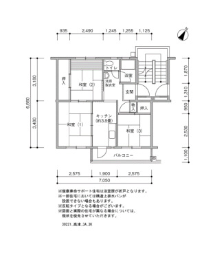
間取り画像

▲ Click to enlarge(All 7 images

Address Takatsu Yachiyo Chiba832-1
Access Toyo High-Speed ​​Railway Yachiyo Midorigaoka Station + 13 minutes walk
Keisei Main Line KS29 Yachiyodai Station 7 minutes bus ( to『団地三叉路』 bus stop) + 1 minutes walk
Toyo High-Speed ​​Railway Yachiyo Chuo Station + 36 minutes walk
Rent 40,000円
Security Deposit 2 months Gratuity fee 0 month
Renewal fee 0 month Deposit -
Free rent - Common service fee 2,950円
Brokerage fee 0 month Total Unit 2,933
Floor 5F Building age 50年~53年
Layout 3K Size(sq. m) 46㎡
Parking 平面 空き台数:71台 料金:7,920円
Japanese Site 高津(第1次)
Building feature
  • CATV
  • BS
  • Optical wiring
  • Elevator
Room feature
  •  Automatic hot water filling function
  • Separate kitchen
  • Screen Door
  • Bath and toilet are separated
  • Auxiliary Heater
  • Balcony

※ Facilities vary by room/building

Map

この物件の他の空室一覧

Floor plan Condition Floor / Story Rent Layout
Size(sq. m)
Available 4F 40,700円 2DK
41㎡
Room details
Bookmark