Okubo| 2LDK|Narashino本大久保

Okubo| 2LDK|Narashino本大久保

  • UR
  • NO KEY MONEY
Address Moto-Okubo Narashino Chiba2-4
Access Keisei Main Line KS27 Keisei-Ohkubo Station + 8 minutes walk
JR Sobu Line JB34 Makuhari-Hongo Station + 21 minutes walk
Keisei Chiba Line Keisei-makuhari-hongo Station + 21 minutes walk
Rent 96,600円
Security Deposit 2 months Gratuity fee 0 month
Renewal fee 0 month Deposit -
Free rent - Common service fee 4,600円
Brokerage fee 0 month Total Unit 392
Floor 3F Building age 28年~32年
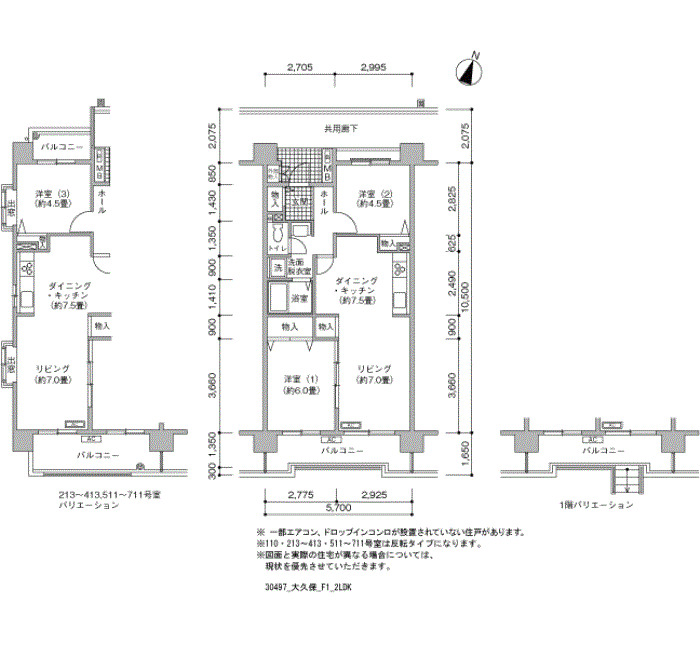
Layout 2LDK Size(sq. m) 57㎡
Parking 平面 空き台数:1台 料金:8,250円機械 空き台数:7台 料金:7,480円~8,250円
Japanese Site 大久保
Building feature
  • CATV
  • BS
  • Optical wiring
  • Elevator
  • Surveillance camera
Room feature
  • Drop-in stove
  •  Automatic hot water filling function
  • Screen Door
  • Air conditioner
  •  Intercom with monitor
  • Shoes box
  • Trunk room
  • Bath and toilet are separated
  • Auxiliary Heater
  • Balcony

※ Facilities vary by room/building