Urbania Shiga Koen| 3LDK|Nagoya-Kita中丸町

Urbania Shiga Koen| 3LDK|Nagoya-Kita中丸町

  • UR
  • NO KEY MONEY

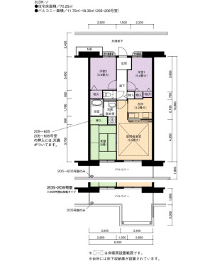
間取り画像

▲ Click to enlarge(All 8 images

Address Nakamaruchou Nagoya-Kita Aichi2-66 他
Access Nagoya Municipal Meijo Line Kurokawa Station + 13 minutes walk
Nagoya Municipal Tsurumai Line Shonaidori Station + 17 minutes walk
Nagoya Municipal Meijo Line Sakae Station 14 minutes bus ( to『志賀公園前』 bus stop) + 3 minutes walk
Rent 110,800円
Security Deposit 2 months Gratuity fee 0 month
Renewal fee 0 month Deposit -
Free rent - Common service fee 4,200円
Brokerage fee 0 month Total Unit 712
Floor 3F Building age 24年~28年
Layout 3LDK Size(sq. m) 70㎡
Parking 平面 空き台数:1台 料金:11,110円自走 空き台数:102台 料金:11,110円~12,540円(軽専用 空き台数:2台 料金:9,460円)
Japanese Site アーバニア志賀公園
Building feature
  • CATV
  • BS
  • Optical wiring
  • LAN in residential building
  • Elevator
  • Surveillance camera
Room feature
  •  Automatic hot water filling function
  • Separate kitchen
  • Screen Door
  • Air conditioner
  • Automatic Lock
  •  Intercom with monitor
  • Floor Heating
  • Electronic Bidet
  • Bathroom Dryer
  • Bath and toilet are separated
  • Auxiliary Heater
  • Balcony

※ Facilities vary by room/building