Tama New Town Maison Hijirigaoka-1| 3LDK|Tama聖ヶ丘

Tama New Town Maison Hijirigaoka-1| 3LDK|Tama聖ヶ丘

  • UR
  • NO KEY MONEY

間取り画像

▲ Click to enlarge(All 7 images

Address Hijirigaoka Tama Tokyo1-13
Access Odakyu Tama Line Odakyu Nagayama Station + 18 minutes walk
Keio Sagamihara Line Keio Nagayama Station + 18 minutes walk
Odakyu Tama Line Odakyu Nagayama Station 4 minutes bus ( to『聖ヶ丘二丁目』 bus stop) + 2 minutes walk
Keio Sagamihara Line Keio Nagayama Station 4 minutes bus ( to『聖ヶ丘二丁目』 bus stop) + 2 minutes walk
Keio Line KO27 Seiseki-sakuragaoka Station + 26 minutes walk
Rent 99,500円
Security Deposit 2 months Gratuity fee 0 month
Renewal fee 0 month Deposit -
Free rent - Common service fee 2,600円
Brokerage fee 0 month Total Unit 119
Floor 4F Building age 39年
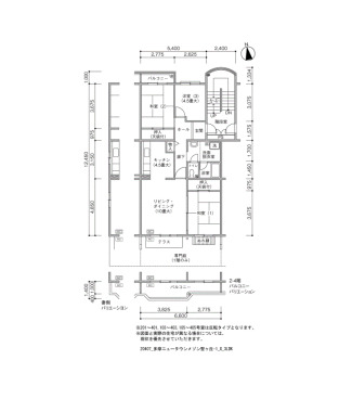
Layout 3LDK Size(sq. m) 76㎡
Parking 平面 空き台数:16台 料金:11,550円近隣駐車場のご案内・多摩ニュータウン エステート聖ヶ丘‐2
Japanese Site 多摩ニュータウン メゾン聖ヶ丘-1
Building feature
  • CATV
  • LAN in residential building
  • Optical wiring
Room feature
  •  Automatic hot water filling function
  • Air conditioner
  • Bath and toilet are separated
  • Auxiliary Heater
  • Wooden Flooring
  • Balcony

※ Facilities vary by room/building