Amity Minami Rokugo| 2LDK|Oota南六郷

Amity Minami Rokugo| 2LDK|Oota南六郷

  • UR
  • NO KEY MONEY

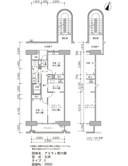
間取り画像

▲ Click to enlarge(All 7 images

Address Minami-Rokugou Oota Tokyo3-18-1
Access Keikyu Main Line KK18 Zoshiki Station + 9 minutes walk
Rent 164,800円
Security Deposit 2 months Gratuity fee 0 month
Renewal fee 0 month Deposit -
Free rent - Common service fee 6,000円
Brokerage fee 0 month Total Unit 126
Floor 11F Building age 28年
Layout 2LDK Size(sq. m) 59㎡
Parking 機械 空き台数:7台 料金:21,120円~21,340円近隣駐車場のご案内・南六郷二丁目
Japanese Site アミティ南六郷
Building feature
  • CATV
  • BS
  • Optical wiring
  • Elevator
  • Surveillance camera
  • Delivery box
Room feature
  • Drop-in stove
  •  Automatic hot water filling function
  • Separate kitchen
  • Air conditioner
  •  Intercom with monitor
  • Shoes box
  • Bath and toilet are separated
  • Auxiliary Heater
  • Balcony

※ Facilities vary by room/building