Yokodai Chuo| 2DK|Isogo-Yokohama洋光台

Yokodai Chuo| 2DK|Isogo-Yokohama洋光台

  • UR
  • NO KEY MONEY

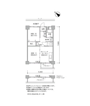
間取り画像

▲ Click to enlarge(All 8 images

Address Yokodai Isogo-Yokohama Kanagawa3-13
Access JR Negishi Line Yokodai Station + 1 minutes walk
JR Keihin Tohoku Line JK04 Yokodai Station + 1 minutes walk
Keikyu Main Line KK44 Kami-Ooka Station 21 minutes bus ( to『洋光台駅前』 bus stop) + 1 minutes walk
Yokohama Municipal Subway Blue Line Kounan-chuou Station 18 minutes bus ( to『洋光台駅前』 bus stop) + 1 minutes walk
Rent 87,800円
Security Deposit 2 months Gratuity fee 0 month
Renewal fee 0 month Deposit -
Free rent - Common service fee 4,400円
Brokerage fee 0 month Total Unit 1,264
Floor 10F Building age 54年~55年
Layout 2DK Size(sq. m) 42㎡
Parking 平面 空き台数:2台 料金:16,940円近隣駐車場のご案内・洋光台北
Japanese Site 洋光台中央
Building feature
  • CATV
  • BS
  • Optical wiring
  • Elevator
  • Surveillance camera
Room feature
  •  Automatic hot water filling function
  • Screen Door
  • Air conditioner
  •  Intercom with monitor
  • Bath and toilet are separated
  • Auxiliary Heater
  • Balcony

※ Facilities vary by room/building