間取り画像
▲ Click to enlarge(All 6 images)
| Address | Saiwaichou Tachikawa Tokyo4-52-1 | ||
|---|---|---|---|
| Access |
Seibu Haijima Line
『
Higashi Yamatoshi Station
』
+ 16 minutes walk
Tama Toshi Mono Rail 『 Tamagawa Josui Station 』 + 15 minutes walk JR Chuo Line 『 Tachikawa Station 』 20 minutes bus ( to『幸町団地』 bus stop) + 3 minutes walk JR Nanbu Line 『 Tachikawa Station 』 20 minutes bus ( to『幸町団地』 bus stop) + 3 minutes walk JR Ome Line 『 Tachikawa Station 』 20 minutes bus ( to『幸町団地』 bus stop) + 3 minutes walk |
||
| Rent | 108,500円 | ||
| Security Deposit | 2 months | Gratuity fee | 0 month |
| Renewal fee | 0 month | Deposit | - |
| Free rent | - | Common service fee | 3,400円 |
| Brokerage fee | 0 month | Total Unit | 900 |
| Floor | 2F | Building age | 33年~54年 |
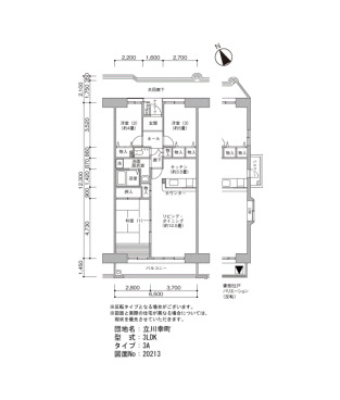
| Layout | 3LDK | Size(sq. m) | 77㎡ |
| Parking | 平面 空き台数:1台 料金:10,010円機械 空き台数:8台 料金:9,020円~10,010円 | ||
| Japanese Site | 立川幸町 | ||
| Building feature |
|---|
|
|
| Room feature |
|
|
※ Facilities vary by room/building
| Floor plan | Condition | Floor / Story | Rent | Layout Size(sq. m) |
|
|---|---|---|---|---|---|
|
|
Available | 1F | 70,500円 |
2LDK 56㎡ |
Room details
Bookmark |
|
|
Available | 5F | 68,200円 |
3DK 56㎡ |
Room details
Bookmark |