Amity Hirakata Miyanosaka| 2DK|Hirakata宮之阪

Amity Hirakata Miyanosaka| 2DK|Hirakata宮之阪

  • UR
  • NO KEY MONEY

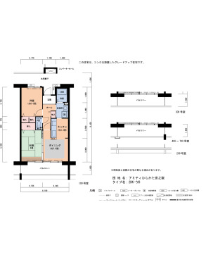
間取り画像

▲ Click to enlarge(All 3 images

Address Miyanosaka Hirakata Osaka2丁目5番60
Access Keihan Katano Line Miyanosaka Station + 9 minutes walk
Keihan Main Line Hirakata shi Station + 17 minutes walk
Rent 95,000円
Security Deposit 2 months Gratuity fee 0 month
Renewal fee 0 month Deposit -
Free rent - Common service fee 6,400円
Brokerage fee 0 month Total Unit 89
Floor 5F Building age 16年
Layout 2DK Size(sq. m) 55㎡
Parking 平面 空き台数:3台 料金:10,780円
Japanese Site アミティひらかた宮之阪
Building feature
  • LAN in residential building
  • Elevator
  • Surveillance camera
Room feature
  • Drop-in stove
  •  Automatic hot water filling function
  • Internet ADSL
  • Screen Door
  • Automatic Lock
  • Floor Heating
  • Bathroom Dryer
  • Bath and toilet are separated
  • Auxiliary Heater
  • Balcony

※ Facilities vary by room/building