間取り画像
▲ Click to enlarge(All 3 images)
| Address | Akamidai Kounosu Saitama2-2 | ||
|---|---|---|---|
| Access |
JR Takasaki Line
『
Kita Konosu Station
』
+ 3 minutes walk
JR Takasaki Line 『 Kounosu Station 』 + 58 minutes walk JR Takasaki Line 『 Fukiage Station 』 + 38 minutes walk |
||
| Rent | 62,500円 | ||
| Security Deposit | 2 months | Gratuity fee | 0 month |
| Renewal fee | 0 month | Deposit | - |
| Free rent | - | Common service fee | 2,100円 |
| Brokerage fee | 0 month | Total Unit | 385 |
| Floor | 5F | Building age | 39年~41年 |
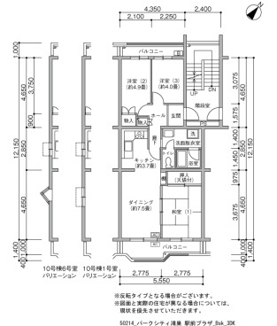
| Layout | 3DK | Size(sq. m) | 62㎡ |
| Parking | 平面 空き台数:9台 料金:6,160円近隣駐車場のご案内・パークシティ鴻巣 駅前プラザ第三・パークシティ鴻巣駅前プラザ第二 | ||
| Japanese Site | パークシティ鴻巣駅前プラザ | ||
| Building feature |
|---|
|
|
| Room feature |
|
|
※ Facilities vary by room/building
| Floor plan | Condition | Floor / Story | Rent | Layout Size(sq. m) |
|
|---|---|---|---|---|---|
|
|
Available | 4F | 78,600円 |
3LDK 74㎡ |
Room details
Bookmark |