View Court Bukko| 3LDK|Hodogaya-Yokohama仏向町

View Court Bukko| 3LDK|Hodogaya-Yokohama仏向町

  • UR
  • NO KEY MONEY
Address Bukkouchou Hodogaya-Yokohama Kanagawa1037-1
Access Sotetsu Main Line Wadamachi Station + 17 minutes walk
JR Yokosuka Line Higashi Totsuka Station 10 minutes bus ( to『栗の沢』 bus stop) + 1 minutes walk
JR Shonan Shinjuku Line Higashi Totsuka Station 10 minutes bus ( to『栗の沢』 bus stop) + 1 minutes walk
JR Yokosuka Line Hodogaya Station 14 minutes bus ( to『栗の沢』 bus stop) + 1 minutes walk
Rent 108,600円
Security Deposit 2 months Gratuity fee 0 month
Renewal fee 0 month Deposit -
Free rent - Common service fee 3,800円
Brokerage fee 0 month Total Unit 171
Floor 3F Building age 34年
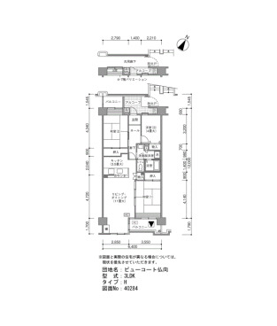
Layout 3LDK Size(sq. m) 78㎡
Parking 平面 空き台数:18台 料金:13,310円
Japanese Site ビューコート仏向
Building feature
  • Optical wiring
  • CATV
  • Elevator
  • Surveillance camera
Room feature
  • Air conditioner
  •  Automatic hot water filling function
  •  Intercom with monitor
  • Separate kitchen
  • Bath and toilet are separated
  • Balcony

※ Facilities vary by room/building