間取り画像
▲ Click to enlarge(All 19 images)
| Address | Gakuen-Nishimachi Kobe-Nishi Hyogo七丁目1番地 | ||
|---|---|---|---|
| Access |
Kobe Municipal Seishin / Yamanote Line
『
Gakuen Toshi Station
』
+ 3 minutes walk
|
||
| Rent | 95,900円 | ||
| Security Deposit | 2 months | Gratuity fee | 0 month |
| Renewal fee | 0 month | Deposit | - |
| Free rent | - | Common service fee | 3,140円 |
| Brokerage fee | 0 month | Total Unit | 856 |
| Floor | 2F | Building age | 32年~36年 |
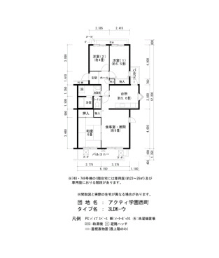
| Layout | 3LDK | Size(sq. m) | 71㎡ |
| Parking | 平面 空き台数:89台 料金:8,470円 | ||
| Japanese Site | アクティ学園西町 | ||
| Building feature |
|---|
|
|
| Room feature |
|
|
※ Facilities vary by room/building
| Floor plan | Condition | Floor / Story | Rent | Layout Size(sq. m) |
|
|---|---|---|---|---|---|
|
|
Available | 1F | 108,900円 |
4LDK 85㎡ |
Room details
Bookmark |
|
|
Available | 1F | 120,100円 |
4LDK 86㎡ |
Room details
Bookmark |
|
|
Available | 5F | 119,400円 |
4DK 102㎡ |
Room details
Bookmark |