Nishikubocho Koen Heights| 2LDK|Hodogaya-Yokohama西久保町

Nishikubocho Koen Heights| 2LDK|Hodogaya-Yokohama西久保町

  • UR
  • NO KEY MONEY
Address Nishi-Kubochou Hodogaya-Yokohama Kanagawa1-4
Access Sotetsu Main Line Tennocho Station + 5 minutes walk
JR Yokosuka Line Hodogaya Station + 11 minutes walk
JR Shonan Shinjuku Line Hodogaya Station + 11 minutes walk
Sotetsu Main Line Nishiyokohama Station + 7 minutes walk
Rent 122,400円
Security Deposit 2 months Gratuity fee 0 month
Renewal fee 0 month Deposit -
Free rent - Common service fee 3,100円
Brokerage fee 0 month Total Unit 746
Floor 15F Building age 36年~38年
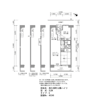
Layout 2LDK Size(sq. m) 59㎡
Parking 平面 空き台数:44台 料金:23,320円自走 空き台数:35台 料金:23,320円~26,290円
Japanese Site 西久保町公園ハイツ
Building feature
  • CATV
  • Optical wiring
  • Elevator
  • Surveillance camera
Room feature
  • Air conditioner
  • Drop-in stove
  •  Intercom with monitor
  • Bath and toilet are separated
  • Balcony

※ Facilities vary by room/building