Akishima Tsutsujigaoka Heights| 2LDK|Akishimaつつじが丘

Akishima Tsutsujigaoka Heights| 2LDK|Akishimaつつじが丘

  • UR
  • NO KEY MONEY

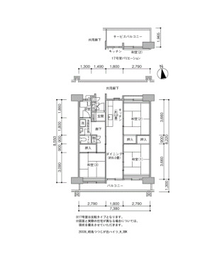
間取り画像

Address Tutsujigaoka Akishima Tokyo3-4
Access JR Ome Line Akishima Station + 9 minutes walk
JR Ome Line Nakagami Station + 13 minutes walk
Seibu Haijima Line Seibu Tachikawa Station + 25 minutes walk
Rent 90,600円
Security Deposit 2 months Gratuity fee 0 month
Renewal fee 0 month Deposit -
Free rent - Common service fee 4,400円
Brokerage fee 0 month Total Unit 859
Floor 2F Building age 44年~45年
Layout 2LDK Size(sq. m) 65㎡
Parking 平面 空き台数:108台 料金:9,240円~10,230円
Japanese Site 昭島つつじが丘ハイツ
Building feature
  • CATV
  • Optical wiring
  • Elevator
  • Surveillance camera
Room feature
  • Drop-in stove
  •  Automatic hot water filling function
  • Bath and toilet are separated
  • Balcony
  • Auxiliary Heater

※ Facilities vary by room/building