City Heights Hino Asahigaoka| 3DK|Hino旭が丘

City Heights Hino Asahigaoka| 3DK|Hino旭が丘

  • UR
  • NO KEY MONEY

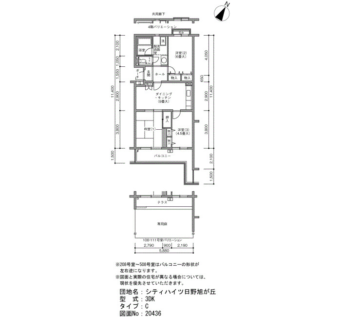
間取り画像

▲ Click to enlarge(All 6 images

Address Asahigaoka Hino Tokyo4-7-5
Access JR Chuo Line Toyoda Station + 20 minutes walk
JR Chuo Line Toyoda Station 7 minutes bus ( to『平山工業団地』 bus stop) + 1 minutes walk
Keio Line Naganuma Station + 26 minutes walk
JR Hachiko Line Kita Hachi-oji Station + 23 minutes walk
Rent 91,000円
Security Deposit 2 months Gratuity fee 0 month
Renewal fee 0 month Deposit -
Free rent - Common service fee 2,700円
Brokerage fee 0 month Total Unit 607
Floor 2F Building age 27年~37年
Layout 3DK Size(sq. m) 65㎡
Parking 平面 空き台数:2台 料金:10,230円機械 空き台数:43台 料金:9,240円~11,660円
Japanese Site シティハイツ日野旭が丘
Building feature
  • CATV
  • BS
  • Optical wiring
  • Elevator
  • Surveillance camera
Room feature
  •  Automatic hot water filling function
  • Bath and toilet are separated
  • Balcony
  • Auxiliary Heater
  • Air conditioner

※ Facilities vary by room/building