HAT Kobe Nadanohama| 4LDK|Kobe-Nada摩耶海岸通

HAT Kobe Nadanohama| 4LDK|Kobe-Nada摩耶海岸通

  • UR
  • NO KEY MONEY

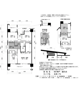
間取り画像

▲ Click to enlarge(All 3 images

Address Mayakaigandori Kobe-Nada Hyogo二丁目3番
Access Hanshin Main Line Iwaya Station + 5 minutes walk
JR Tokaidou・Sanyou Nada Station + 8 minutes walk
Rent 157,200円
Security Deposit 2 months Gratuity fee 0 month
Renewal fee 0 month Deposit -
Free rent - Common service fee 3,800円
Brokerage fee 0 month Total Unit 1,020
Floor 7F Building age 26年~27年
Layout 4LDK Size(sq. m) 88㎡
Parking 自走 空き台数:81台 料金:19,030円機械 空き台数:17台 料金:17,160円~19,030円近隣駐車場のご案内・ルネシティ脇浜町
Japanese Site HAT神戸・灘の浜
Building feature
  • CATV
  • BS
  • Optical wiring
  • Elevator
  • Surveillance camera
Room feature
  • Air conditioner
  • Drop-in stove
  •  Automatic hot water filling function
  • Bath and toilet are separated
  • Balcony
  •  Intercom with monitor
  • Bathroom Dryer

※ Facilities vary by room/building