Takami Floral Town 4bangai| 3LDK|Osaka-Konohana高見

Takami Floral Town 4bangai| 3LDK|Osaka-Konohana高見

  • UR
  • NO KEY MONEY

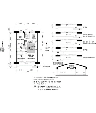
間取り画像

▲ Click to enlarge(All 3 images

Address Takami Osaka-Konohana Osaka一丁目4番
Access Hanshin Nanba Line Chidoribashi Station + 12 minutes walk
Hanshin Main Line Yodogawa Station + 13 minutes walk
Hanshin Nanba Line Nishi-kujyo Station + 20 minutes walk
Rent 103,700円
Security Deposit 2 months Gratuity fee 0 month
Renewal fee 0 month Deposit -
Free rent - Common service fee 3,600円
Brokerage fee 0 month Total Unit 360
Floor 3F Building age 30年~34年
Layout 3LDK Size(sq. m) 75㎡
Parking 機械 空き台数:28台 料金:16,720円~18,590円近隣駐車場のご案内・高見フローラルタウン五番街・高見フローラルタウン七番街・高見フローラルタウン六番街・千鳥橋
Japanese Site 高見フローラルタウン四番街
Building feature
  • CATV
  • BS
  • Optical wiring
  • Elevator
  • Surveillance camera
Room feature
  •  Automatic hot water filling function
  • Separate kitchen
  • Shoes box
  • Bath and toilet are separated
  • Balcony
  • Automatic Lock
  • Bathroom Dryer

※ Facilities vary by room/building