間取り画像
▲ Click to enlarge(All 9 images)
| Address | Ichibanmachi Tachikawa Tokyo6-8-1 | ||
|---|---|---|---|
| Access |
Seibu Haijima Line
『
Seibu Tachikawa Station
』
+ 15 minutes walk
Seibu Haijima Line 『 Seibu Tachikawa Station 』 4 minutes bus ( to『グリーンタウン武蔵村山』 bus stop) + 3 minutes walk JR Ome Line 『 Akishima Station 』 9 minutes bus ( to『グリーンタウン武蔵村山』 bus stop) + 3 minutes walk JR Chuo Line 『 Tachikawa Station 』 20 minutes bus ( to『グリーンタウン武蔵村山』 bus stop) + 3 minutes walk |
||
| Rent | 91,300円 | ||
| Security Deposit | 2 months | Gratuity fee | 0 month |
| Renewal fee | 0 month | Deposit | - |
| Free rent | - | Common service fee | 3,200円 |
| Brokerage fee | 0 month | Total Unit | 527 |
| Floor | 1F | Building age | 39年~42年 |
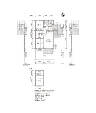
| Layout | 3LDK | Size(sq. m) | 83㎡ |
| Parking | 駐車場 空きなし | ||
| Japanese Site | 立川一番町東 | ||
| Building feature |
|---|
|
|
| Room feature |
|
|
※ Facilities vary by room/building
| Floor plan | Condition | Floor / Story | Rent | Layout Size(sq. m) |
|
|---|---|---|---|---|---|
|
|
Available | 3F | 102,700円 |
4LDK 105㎡ |
Room details
Bookmark |