Tachikawa 1Bancho Higashi| 3LDK|Tachikawa一番町

Tachikawa 1Bancho Higashi| 3LDK|Tachikawa一番町

  • UR
  • NO KEY MONEY

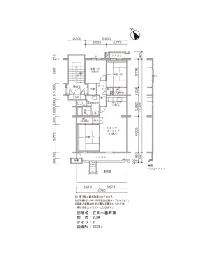
間取り画像

▲ Click to enlarge(All 6 images

Address Ichibanmachi Tachikawa Tokyo6-8-1
Access Seibu Haijima Line Seibu Tachikawa Station + 15 minutes walk
Seibu Haijima Line Seibu Tachikawa Station 4 minutes bus ( to『グリーンタウン武蔵村山』 bus stop) + 3 minutes walk
JR Ome Line Akishima Station 9 minutes bus ( to『グリーンタウン武蔵村山』 bus stop) + 3 minutes walk
JR Chuo Line Tachikawa Station 20 minutes bus ( to『グリーンタウン武蔵村山』 bus stop) + 3 minutes walk
Rent 85,100円
Security Deposit 2 months Gratuity fee 0 month
Renewal fee 0 month Deposit -
Free rent - Common service fee 3,200円
Brokerage fee 0 month Total Unit 527
Floor 1F Building age 39年~42年
Layout 3LDK Size(sq. m) 84㎡
Parking 駐車場 空きなし
Japanese Site 立川一番町東
Building feature
  • Optical wiring
Room feature
  • Stove type stove
  •  Automatic hot water filling function
  • Bath and toilet are separated
  • Auxiliary Heater
  • Wooden Flooring

※ Facilities vary by room/building