Comfort Sugesengoku| 3DK|Tama-Kawasaki菅仙谷

Comfort Sugesengoku| 3DK|Tama-Kawasaki菅仙谷

  • UR
  • NO KEY MONEY

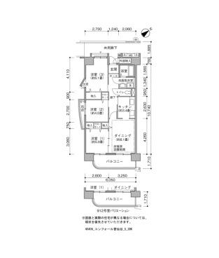
間取り画像

▲ Click to enlarge(All 4 images

Address Sugesengoku Tama-Kawasaki Kanagawa2-9-1
Access Keio Sagamihara Line Keio Inadadzutsumi Station + 11 minutes walk
JR Nanbu Line Inadadzutsumi Station + 14 minutes walk
Odakyu Odawara Line Yomiuriland mae Station 9 minutes bus ( to『菅仙谷公園前』 bus stop) + 3 minutes walk
Rent *****
Security Deposit ***** Gratuity fee *****
Renewal fee ***** Deposit *****
Free rent ***** Common service fee *****
Brokerage fee ***** Total Unit 170
Floor ***** Building age 22年~23年
Layout 3DK Size(sq. m) 67㎡
Parking 平面 空き台数:18台 料金:10,560円~11,990円自走 空き台数:21台 料金:10,560円(軽専用 空き台数:1台 料金:7,920円)近隣駐車場のご案内・星が丘パークランド つぐみ台
Japanese Site コンフォール菅仙谷
Building feature
  • CATV
  • LAN in residential building
  • Optical wiring
  • Elevator
  • Surveillance camera
  • Delivery box
Room feature
  •  Automatic hot water filling function
  •  Intercom with monitor
  • Floor Heating
  • Separate kitchen
  • Bath and toilet are separated
  • Balcony

※ Facilities vary by room/building