Komatsugawa Green Town Sailor Komatsugawa| 3DK|Edogawa小松川

Komatsugawa Green Town Sailor Komatsugawa| 3DK|Edogawa小松川

  • UR
  • NO KEY MONEY

間取り画像

Address Komatsugawa Edogawa Tokyo1-5
Access Toei Shinjuku Line S16 Higashi Ojima Station + 3 minutes walk
Toei Shinjuku Line S17 Funabori Station + 20 minutes walk
JR Sobu Line JB23 Kameido Station 14 minutes bus ( to『東大島駅入口』 bus stop) + 10 minutes walk
Tobu Kameido Line TS44 Kameido Station 14 minutes bus ( to『東大島駅入口』 bus stop) + 10 minutes walk
Rent 137,700円
Security Deposit 2 months Gratuity fee 0 month
Renewal fee 0 month Deposit -
Free rent - Common service fee 5,000円
Brokerage fee 0 month Total Unit 837
Floor 9F Building age 35年~36年
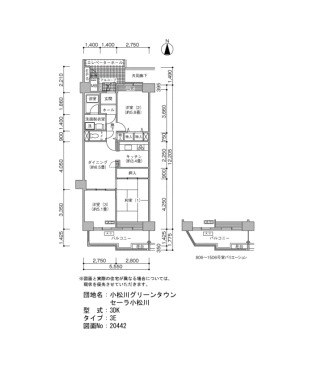
Layout 3DK Size(sq. m) 65㎡
Parking 機械 空き台数:2台 料金:27,610円
Japanese Site 小松川グリーンタウン セーラ小松川
Building feature
  • BS
  • Optical wiring
  • Elevator
  • Surveillance camera
Room feature
  • Air conditioner
  • Drop-in stove
  •  Intercom with monitor
  • Separate kitchen
  • BS Antenna
  • Bath and toilet are separated
  • Auxiliary Heater
  • Balcony

※ Facilities vary by room/building