間取り画像
▲ Click to enlarge(All 3 images)
| Address | Haruno Minuma-Saitama Saitama2-4 | ||
|---|---|---|---|
| Access |
JR Tohoku-honsen
『
Higahsi-ohmiya Station
』
10 minutes bus
( to『西三番街』 bus stop)
+ 4 minutes walk
Tobu Noda Line 『 Nanasato Station 』 9 minutes bus ( to『西三番街』 bus stop) + 4 minutes walk JR Tohoku-honsen 『 Hasuda Station 』 + 44 minutes walk |
||
| Rent | 75,700円 | ||
| Security Deposit | 2 months | Gratuity fee | 0 month |
| Renewal fee | 0 month | Deposit | - |
| Free rent | - | Common service fee | 3,100円 |
| Brokerage fee | 0 month | Total Unit | 195 |
| Floor | 1F | Building age | 30年~32年 |
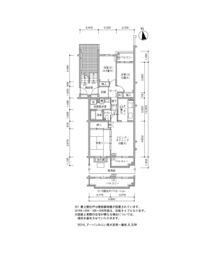
| Layout | 3LDK | Size(sq. m) | 68㎡ |
| Parking | 平面 空き台数:16台 料金:6,050円近隣駐車場のご案内・アーバンみらい東大宮 東一番街 | ||
| Japanese Site | アーバンみらい東大宮 西一番街 | ||
| Building feature |
|---|
|
|
| Room feature |
|
|
※ Facilities vary by room/building
| Floor plan | Condition | Floor / Story | Rent | Layout Size(sq. m) |
|
|---|---|---|---|---|---|
|
|
Available | 2F | 82,900円 |
3LDK 68㎡ |
Room details
Bookmark |
|
|
Available | 5F | 72,600円 |
3LDK 68㎡ |
Room details
Bookmark |