Satte| 2DK|Satte栄

Satte| 2DK|Satte栄

  • UR
  • NO KEY MONEY

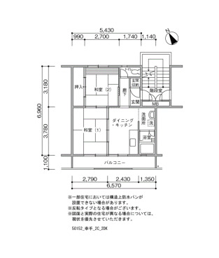
間取り画像

▲ Click to enlarge(All 3 images

Address Sakae Satte Saitama
Access Tobu Nikko Line Sugito Takanodai Station + 9 minutes walk
Rent 35,000円
Security Deposit 2 months Gratuity fee 0 month
Renewal fee 0 month Deposit -
Free rent - Common service fee 2,300円
Brokerage fee 0 month Total Unit 2,852
Floor 5F Building age 52年~53年
Layout 2DK Size(sq. m) 45㎡
Parking 平面 空き台数:32台 料金:5,060円
Japanese Site 幸手
Building feature
  • BS
  • Optical wiring
Room feature
  •  Automatic hot water filling function
  • BS Antenna
  • Bath and toilet are separated
  • Auxiliary Heater
  • Balcony

※ Facilities vary by room/building

Map

この物件の他の空室一覧

Floor plan Condition Floor / Story Rent Layout
Size(sq. m)
Available 2F 37,800円 2DK
41㎡
Room details
Bookmark

Recommended properties nearby

Here are some recommended properties in the vicinity.