Rikodai| 1LDK|Matsudo高塚新田

Rikodai| 1LDK|Matsudo高塚新田

  • UR
  • NO KEY MONEY

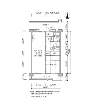
間取り画像

▲ Click to enlarge(All 3 images

Address Takatsukashinden Matsudo Chiba512-10
Access Hokuso Line Akiyama Station + 14 minutes walk
JR Musashino Line Ichikawa-ohno Station + 30 minutes walk
JR Joban Line Matsudo Station 25 minutes bus ( to『市立東松戸病院入口』 bus stop) + 2 minutes walk
Rent 56,000円
Security Deposit 2 months Gratuity fee 0 month
Renewal fee 0 month Deposit -
Free rent - Common service fee 6,700円
Brokerage fee 0 month Total Unit 959
Floor 7F Building age 50年
Layout 1LDK Size(sq. m) 45㎡
Parking 平面 空き台数:11台 料金:7,150円
Japanese Site 梨香台
Building feature
  • CATV
  • BS
  • Optical wiring
  • Elevator
  • Surveillance camera
Room feature
  • Bath and toilet are separated
  • Balcony
  • Auxiliary Heater

※ Facilities vary by room/building