Saint Vallier Hiyoshi| 3LDK|Kouhoku-Yokohama下田町

Saint Vallier Hiyoshi| 3LDK|Kouhoku-Yokohama下田町

  • UR
  • NO KEY MONEY

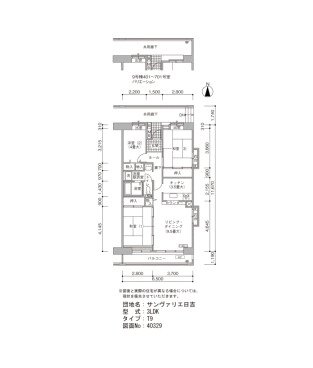
間取り画像

▲ Click to enlarge(All 8 images

Address Shimodamachi Kouhoku-Yokohama Kanagawa4-1
Access Yokohama Municipal Subway Green Line Hiyoshi Honcho Station + 13 minutes walk
Tokyu Toyoko Line Hiyoshi Station + 19 minutes walk
Tokyu Toyoko Line Hiyoshi Station 14 minutes bus ( to『サンヴァリエ日吉』 bus stop) + 1 minutes walk
Rent 146,700円
Security Deposit 2 months Gratuity fee 0 month
Renewal fee 0 month Deposit -
Free rent - Common service fee 4,400円
Brokerage fee 0 month Total Unit 625
Floor 5F Building age 25年~31年
Layout 3LDK Size(sq. m) 72㎡
Parking 機械 空き台数:46台 料金:10,120円~12,760円
Japanese Site サンヴァリエ日吉
Building feature
  • BS
  • Optical wiring
  • CATV
  • Elevator
  • Surveillance camera
Room feature
  • Air conditioner
  • Drop-in stove
  •  Automatic hot water filling function
  •  Intercom with monitor
  • Separate kitchen
  • Bath and toilet are separated
  • Balcony

※ Facilities vary by room/building