Takasu Dai2| 1LDK|Chiba-Mihama高洲

Takasu Dai2| 1LDK|Chiba-Mihama高洲

  • UR
  • NO KEY MONEY

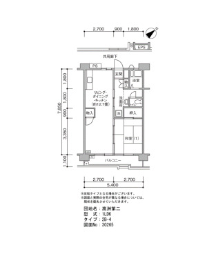
間取り画像

Address Takasu Chiba-Mihama Chiba4
Access JR Keiyo Line JE15 Inagekaigan Station + 3 minutes walk
JR Sobu Line JB37 Inage Station 20 minutes bus ( to『稲毛海岸駅』 bus stop) + 5 minutes walk
Keisei Chiba Line Keisei Inage Station + 14 minutes walk
JR Keiyo Line JE14 Kemigawahama Station + 18 minutes walk
Rent 71,300円
Security Deposit 2 months Gratuity fee 0 month
Renewal fee 0 month Deposit -
Free rent - Common service fee 2,220円
Brokerage fee 0 month Total Unit 1,776
Floor 8F Building age 50年
Layout 1LDK Size(sq. m) 45㎡
Parking 平面 空き台数:221台 料金:10,010円~11,000円
Japanese Site 高洲第二
Building feature
  • CATV
  • Optical wiring
  • Elevator
  • Surveillance camera
Room feature
  • Air conditioner
  •  Automatic hot water filling function
  • Bath and toilet are separated
  • Auxiliary Heater
  • Balcony

※ Facilities vary by room/building