Isogo Sugitadai | 3LDK|Isogo-Yokohama杉田坪呑

Isogo Sugitadai | 3LDK|Isogo-Yokohama杉田坪呑

  • UR
  • NO KEY MONEY

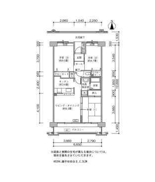
間取り画像

▲ Click to enlarge(All 11 images

Address Sugitatsubonomi Isogo-Yokohama Kanagawa1-4
Access Keikyu Main Line KK46 Sugita Station + 13 minutes walk
Kanazawa Seaside Line Shinsugita Station 7 minutes bus ( to『杉田坪呑中央』 bus stop) + 2 minutes walk
JR Negishi Line Shin Sugita Station 7 minutes bus ( to『杉田坪呑中央』 bus stop) + 2 minutes walk
Rent 122,500円
Security Deposit 2 months Gratuity fee 0 month
Renewal fee 0 month Deposit -
Free rent - Common service fee 3,200円
Brokerage fee 0 month Total Unit 23
Floor 5F Building age 26年
Layout 3LDK Size(sq. m) 70㎡
Parking 駐車場 空きなし近隣駐車場のご案内・磯子杉田台
Japanese Site 磯子杉田台Ⅱ
Building feature
  • CATV
  • BS
  • Optical wiring
  • Elevator
  • Surveillance camera
Room feature
  •  Automatic hot water filling function
  • Separate kitchen
  • BS Antenna
  • Bath and toilet are separated
  • Auxiliary Heater
  • Balcony
  • Screen Door

※ Facilities vary by room/building