Green Town Misumi Ichibangai| 2LDK|Higashi-Murayama美住町

Green Town Misumi Ichibangai| 2LDK|Higashi-Murayama美住町

  • UR
  • NO KEY MONEY

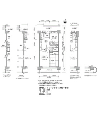
間取り画像

▲ Click to enlarge(All 6 images

Address Misumichou Higashi-Murayama Tokyo1-4-1
Access Seibu Shinjuku Line SS20 Kumegawa Station + 12 minutes walk
Seibu Tamako Line Yasaka Station + 9 minutes walk
Seibu Shinjuku Line SS21 Higashi-Murayama Station + 19 minutes walk
Rent 101,700円
Security Deposit 2 months Gratuity fee 0 month
Renewal fee 0 month Deposit -
Free rent - Common service fee 4,250円
Brokerage fee 0 month Total Unit 945
Floor 8F Building age 22年~32年
Layout 2LDK Size(sq. m) 62㎡
Parking 機械 空き台数:26台 料金:9,900円~10,890円
Japanese Site グリーンタウン美住一番街
Building feature
  • CATV
  • BS
  • Optical wiring
  • LAN in residential building
  • Elevator
  • Surveillance camera
Room feature
  • Air conditioner
  • Drop-in stove
  •  Automatic hot water filling function
  •  Intercom with monitor
  • Separate kitchen
  • BS Antenna
  • Bath and toilet are separated
  • Auxiliary Heater
  • Wooden Flooring
  • Balcony

※ Facilities vary by room/building