Shibayama| 2DK|Funabashi芝山

Shibayama| 2DK|Funabashi芝山

  • UR
  • NO KEY MONEY

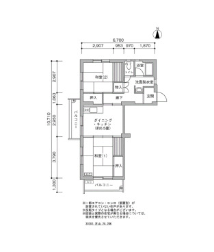
間取り画像

▲ Click to enlarge(All 3 images

Address Shibayama Funabashi Chiba1-40
Access Toyo High-Speed ​​Railway Hasama Station + 6 minutes walk
JR Sobu Line JB31 Funabashi Station 16 minutes bus ( to『芝山団地入口』 bus stop) + 3 minutes walk
Shin Keisei Line Kita Narashino Station + 35 minutes walk
Rent 76,100円
Security Deposit 2 months Gratuity fee 0 month
Renewal fee 0 month Deposit -
Free rent - Common service fee 2,400円
Brokerage fee 0 month Total Unit 1,641
Floor 5F Building age 46年~49年
Layout 2DK Size(sq. m) 58㎡
Parking 平面 空き台数:44台 料金:6,820円
Japanese Site 芝山
Building feature
  • CATV
  • BS
  • Optical wiring
  • Elevator
  • Surveillance camera
Room feature
  • Air conditioner
  • Stove type stove
  •  Automatic hot water filling function
  • Bath and toilet are separated
  • Balcony
  • Screen Door
  • Auxiliary Heater

※ Facilities vary by room/building