間取り画像
▲ Click to enlarge(All 6 images)
| Address | Yurigaoka Asao-Kawasaki Kanagawa1-16 | ||
|---|---|---|---|
| Access |
Odakyu Odawara Line
『
Yurigaoka Station
』
+ 3 minutes walk
Odakyu Odawara Line 『 Shin Yurigaoka Station 』 + 10 minutes walk Tokyu Denentoshi Line 『 Azamoino Station 』 41 minutes bus ( to『管理事務所前』 bus stop) + 2 minutes walk |
||
| Rent | 137,700円 | ||
| Security Deposit | 2 months | Gratuity fee | 0 month |
| Renewal fee | 0 month | Deposit | - |
| Free rent | - | Common service fee | 4,400円 |
| Brokerage fee | 0 month | Total Unit | 1,080 |
| Floor | 1F | Building age | 23年~30年 |
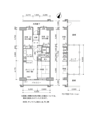
| Layout | 3DK | Size(sq. m) | 65㎡ |
| Parking | 平面 空き台数:17台 料金:11,770円機械 空き台数:11台 料金:10,560円~11,770円 | ||
| Japanese Site | サンラフレ百合ヶ丘 | ||
| Building feature |
|---|
|
|
| Room feature |
|
|
※ Facilities vary by room/building
| Floor plan | Condition | Floor / Story | Rent | Layout Size(sq. m) |
|
|---|---|---|---|---|---|
|
|
Available | 3F | 190,900円 |
3LDK 76㎡ |
Room details
Bookmark |
|
|
Available | 4F | 176,300円 |
3LDK 70㎡ |
Room details
Bookmark |
|
|
Available | 5F | 191,700円 |
3LDK 73㎡ |
Room details
Bookmark |
Tokaichiba Hill Town Comfort Toka Ichiba 11Bangai
Toukaichiba Midori-Yokohama Kanagawa1501
Tokaichiba Hill Town Comfort Toka Ichiba 9Bangai
Toukaichiba Midori-Yokohama Kanagawa1258
Tokaichiba Hill Town Comfort Toka Ichiba 14Bangai
Toukaichiba Midori-Yokohama Kanagawa1258
Tokaichiba Hill Town Comfort Toka Ichiba 6Bangai
Toukaichiba Midori-Yokohama Kanagawa1358-48