Kojimacho 2chome| 2DK|Edogawa西葛西

Kojimacho 2chome| 2DK|Edogawa西葛西

  • UR
  • NO KEY MONEY

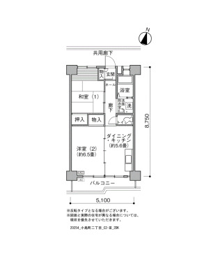
間取り画像

▲ Click to enlarge(All 3 images

Address Nishi-Kasai Edogawa Tokyo5-8
Access Tokyo Metro Tozai Line T16 Nishi-kasai Station + 3 minutes walk
Tokyo Metro Tozai Line T17 Kasai Station + 14 minutes walk
Toei Shinjuku Line S17 Funabori Station 13 minutes bus ( to『スポーツセンター前』 bus stop) + 1 minutes walk
Rent 99,800円
Security Deposit 2 months Gratuity fee 0 month
Renewal fee 0 month Deposit -
Free rent - Common service fee 3,000円
Brokerage fee 0 month Total Unit 1,526
Floor 13F Building age 46年~51年
Layout 2DK Size(sq. m) 47㎡
Parking 平面 空き台数:6台 料金:22,990円自走 空き台数:21台 料金:22,990円~25,960円
Japanese Site 小島町二丁目
Building feature
  • BS
  • Elevator
  • Surveillance camera
Room feature
  • Air conditioner
  • Automatic Lock
  •  Intercom with monitor
  • BS Antenna
  • Bath and toilet are separated
  • Auxiliary Heater
  • Balcony

※ Facilities vary by room/building