Square Setagaya Sakuragaoka| 1DK|Setagaya桜丘

Square Setagaya Sakuragaoka| 1DK|Setagaya桜丘

  • UR
  • NO KEY MONEY

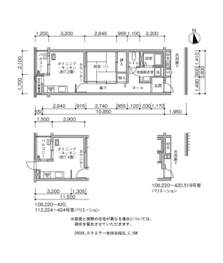
間取り画像

▲ Click to enlarge(All 3 images

Address Sakuragaoka Setagaya Tokyo1-2-20
Access Odakyu Odawara Line Chotose Funabashi Station + 12 minutes walk
Odakyu Odawara Line Kyodo Station + 15 minutes walk
Rent 126,100円
Security Deposit 2 months Gratuity fee 0 month
Renewal fee 0 month Deposit -
Free rent - Common service fee 8,300円
Brokerage fee 0 month Total Unit 151
Floor 5F Building age 29年
Layout 1DK Size(sq. m) 39㎡
Parking 機械 空き台数:12台 料金:19,030円~23,870円
Japanese Site スクエアー世田谷桜丘
Building feature
  • BS
  • Optical wiring
  • Elevator
  • Surveillance camera
  • Delivery box
Room feature
  • Air conditioner
  • Drop-in stove
  •  Automatic hot water filling function
  •  Intercom with monitor
  • Shoes box
  • Bath and toilet are separated
  • Balcony
  • Auxiliary Heater

※ Facilities vary by room/building