Urban Rafre Nijigaoka Nishi| 2LDK|Nagoya-Meitoにじが丘

Urban Rafre Nijigaoka Nishi| 2LDK|Nagoya-Meitoにじが丘

  • UR
  • NO KEY MONEY

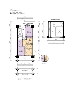
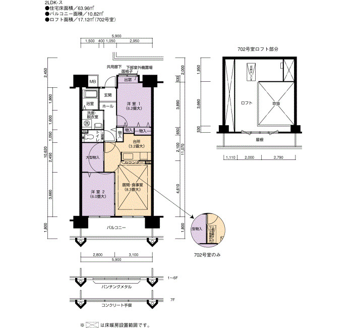
間取り画像

Address Nijigaoka Nagoya-Meito Aichi2-7
Access Nagoya Municipal Higashiyama Line Hoshigaoka Station + 10 minutes walk
Nagoya Municipal Higashiyama Line Issha Station + 17 minutes walk
Nagoya Municipal Higashiyama Line Higashiyama Koen Station + 22 minutes walk
Rent 104,100円
Security Deposit 2 months Gratuity fee 0 month
Renewal fee 0 month Deposit -
Free rent - Common service fee 4,200円
Brokerage fee 0 month Total Unit 429
Floor 4F Building age 22年~29年
Layout 2LDK Size(sq. m) 63㎡
Parking 自走 空き台数:23台 料金:10,120円~11,550円
Japanese Site アーバンラフレ虹ヶ丘西
Building feature
  • CATV
  • BS
  • Optical wiring
  • LAN in residential building
  • Elevator
  • Surveillance camera
Room feature
  • Air conditioner
  •  Automatic hot water filling function
  • Floor Heating
  • Separate kitchen
  • Bath and toilet are separated
  • Balcony
  • Screen Door
  • Automatic Lock
  • Electronic Bidet
  • Auxiliary Heater

※ Facilities vary by room/building

Map

この物件の他の空室一覧

Floor plan Condition Floor / Story Rent Layout
Size(sq. m)
Available 2F 87,000円 1LDK
47㎡
Room details
Bookmark
Available 2F 106,200円 2LDK
65㎡
Room details
Bookmark
Available 3F 112,200円 2LDK
64㎡
Room details
Bookmark
Available 6F 128,800円 3LDK
73㎡
Room details
Bookmark
Available 7F 122,600円 3DK
68㎡
Room details
Bookmark