Kanazawa Seaside Town Namiki 2chome| 2LDK|Kanazawa-Yokohama並木

Kanazawa Seaside Town Namiki 2chome| 2LDK|Kanazawa-Yokohama並木

  • UR
  • NO KEY MONEY

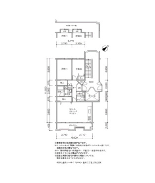
間取り画像

Address Namiki Kanazawa-Yokohama Kanagawa2
Access Kanazawa Seaside Line Namiki Chuo Station + 7 minutes walk
Keikyu Main Line KK47 Keikyu Tomioka Station + 11 minutes walk
Keikyu Main Line KK48 Nokendai Station + 22 minutes walk
Rent 94,500円
Security Deposit 2 months Gratuity fee 0 month
Renewal fee 0 month Deposit -
Free rent - Common service fee 4,300円
Brokerage fee 0 month Total Unit 564
Floor 3F Building age 44年
Layout 2LDK Size(sq. m) 68㎡
Parking 平面 空き台数:25台 料金:13,310円
Japanese Site 金沢シーサイドタウン 並木二丁目
Building feature
  • CATV
  • BS
  • Optical wiring
  • Elevator
  • Surveillance camera
Room feature
  • Drop-in stove
  •  Intercom with monitor
  • Bath and toilet are separated
  • Balcony
  • Screen Door

※ Facilities vary by room/building