Niiza Heights| 3LDK|Niza新座

Niiza Heights| 3LDK|Niza新座

  • UR
  • NO KEY MONEY

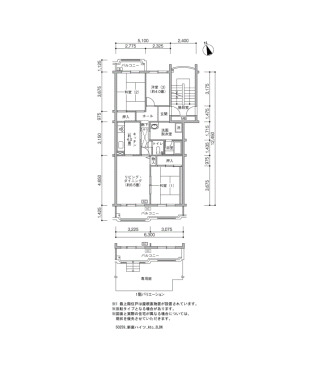
間取り画像

▲ Click to enlarge(All 3 images

Address Niiza Niza Saitama3-6-13
Access Tobu Tojo Line Yanasegawa Station + 14 minutes walk
Rent 94,600円
Security Deposit 2 months Gratuity fee 0 month
Renewal fee 0 month Deposit -
Free rent - Common service fee 3,200円
Brokerage fee 0 month Total Unit 50
Floor 3F Building age 37年
Layout 3LDK Size(sq. m) 72㎡
Parking -近隣駐車場のご案内・新座
Japanese Site 新座ハイツ
Building feature
  • CATV
  • Optical wiring
Room feature
  • Air conditioner
  • Drop-in stove
  •  Automatic hot water filling function
  • Separate kitchen
  • Bath and toilet are separated
  • Auxiliary Heater
  • Balcony
  • Screen Door

※ Facilities vary by room/building