City Court Sumiyoshi Honmachi| 1DK|Kobe-Higashi-Nada住吉本町

City Court Sumiyoshi Honmachi| 1DK|Kobe-Higashi-Nada住吉本町

  • UR
  • NO KEY MONEY

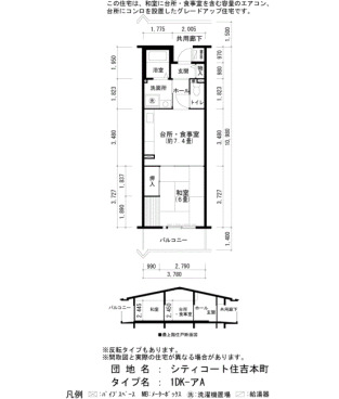
間取り画像

▲ Click to enlarge(All 3 images

Address Sumiyoshimotochou Kobe-Higashi-Nada Hyogo1丁目13番14
Access JR Kobe Line Sumiyoshi Station + 6 minutes walk
Rent 88,500円
Security Deposit 2 months Gratuity fee 0 month
Renewal fee 0 month Deposit -
Free rent - Common service fee 3,400円
Brokerage fee 0 month Total Unit 75
Floor 4F Building age 28年
Layout 1DK Size(sq. m) 39㎡
Parking 平面 空き台数:1台 料金:18,920円機械 空き台数:17台 料金:17,050円~18,920円
Japanese Site シティコート住吉本町
Building feature
  • CATV
  • BS
  • Optical wiring
  • Elevator
  • Surveillance camera
Room feature
  • Air conditioner
  • Drop-in stove
  •  Automatic hot water filling function
  • BS Antenna
  • Bath and toilet are separated
  • Balcony

※ Facilities vary by room/building