Masago Dai1| 2DK|Chiba-Mihama真砂

Masago Dai1| 2DK|Chiba-Mihama真砂

  • UR
  • NO KEY MONEY

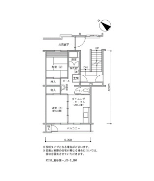
間取り画像

▲ Click to enlarge(All 3 images

Address Masago Chiba-Mihama Chiba4
Access JR Keiyo Line JE14 Kemigawahama Station + 5 minutes walk
JR Sobu Line JB36 Shin-Kemigawa Station 6 minutes bus ( to『5丁目16街区』 bus stop) + 2 minutes walk
Keisei Chiba Line Kemigawa Station + 20 minutes walk
Rent 63,400円
Security Deposit 2 months Gratuity fee 0 month
Renewal fee 0 month Deposit -
Free rent - Common service fee 2,380円
Brokerage fee 0 month Total Unit 2,044
Floor 7F Building age 51年
Layout 2DK Size(sq. m) 43㎡
Parking 平面 空き台数:111台 料金:9,900円自走 空き台数:76台 料金:9,900円~11,330円
Japanese Site 真砂第一
Building feature
  • CATV
  • BS
  • Optical wiring
  • Elevator
  • Surveillance camera
Room feature
  •  Automatic hot water filling function
  • BS Antenna
  • Bath and toilet are separated
  • Balcony
  • Screen Door

※ Facilities vary by room/building