Tokaichiba Hill Town Comfort Toka Ichiba 14Bangai| 3LDK|Midori-Yokohama十日市場町

Tokaichiba Hill Town Comfort Toka Ichiba 14Bangai| 3LDK|Midori-Yokohama十日市場町

  • UR
  • NO KEY MONEY

間取り画像

▲ Click to enlarge(All 5 images

Address Toukaichiba Midori-Yokohama Kanagawa1258
Access JR Yokohama Line Tokaichiba Station + 11 minutes walk
Tokyu Denentoshi Line Aobadai Station 12 minutes bus ( to『十日市場駅』 bus stop) + 11 minutes walk
JR Yokohama Line Nakayama Station 7 minutes bus ( to『宝袋寺前』 bus stop) + 8 minutes walk
Rent 133,500円
Security Deposit 2 months Gratuity fee 0 month
Renewal fee 0 month Deposit -
Free rent - Common service fee 4,500円
Brokerage fee 0 month Total Unit 153
Floor 6F Building age 22年~23年
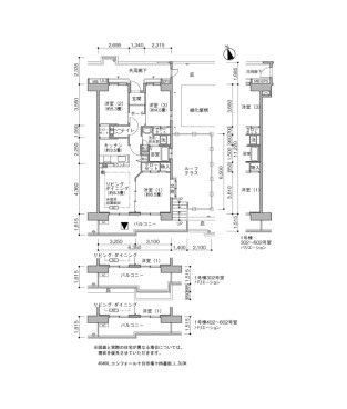
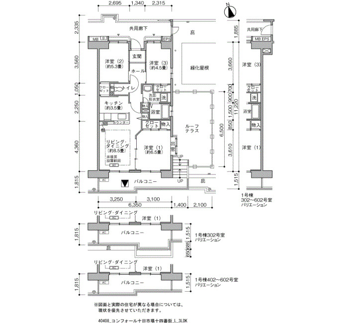
Layout 3LDK Size(sq. m) 70㎡
Parking 平面 空き台数:4台 料金:14,300円自走 空き台数:22台 料金:14,300円~16,170円
Japanese Site 十日市場ヒルタウン コンフォール十日市場十四番街
Building feature
  • CATV
  • LAN in residential building
  • Optical wiring
  • Elevator
  • Surveillance camera
Room feature
  • Air conditioner
  •  Automatic hot water filling function
  •  Intercom with monitor
  • Floor Heating
  • Separate kitchen
  • Bath and toilet are separated
  • Balcony

※ Facilities vary by room/building