Urban Doeru Seya| 2DK|Seya-Yokohama橋戸

Urban Doeru Seya| 2DK|Seya-Yokohama橋戸

  • UR
  • NO KEY MONEY

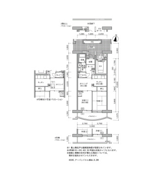
間取り画像

▲ Click to enlarge(All 8 images

Address Hashido Seya-Yokohama Kanagawa1-35
Access Sotetsu Main Line Seya Station + 9 minutes walk
Yokohama Municipal Subway Blue Line Tateba Station 26 minutes bus ( to『橋戸二丁目』 bus stop) + 7 minutes walk
Odakyu Enoshima Line Yamato Station + 33 minutes walk
Rent 87,100円
Security Deposit 2 months Gratuity fee 0 month
Renewal fee 0 month Deposit -
Free rent - Common service fee 3,900円
Brokerage fee 0 month Total Unit 452
Floor 2F Building age 20年~27年
Layout 2DK Size(sq. m) 50㎡
Parking 機械 空き台数:42台 料金:8,800円~11,000円
Japanese Site アーバンドエル瀬谷
Building feature
  • CATV
  • Optical wiring
  • LAN in residential building
  • Elevator
  • Surveillance camera
Room feature
  • Air conditioner
  •  Automatic hot water filling function
  •  Intercom with monitor
  • Bath and toilet are separated
  • Balcony

※ Facilities vary by room/building