Kohoku New Town Comfort Center Minami| 3LDK|Tsuduki-Yokohama茅ケ崎東

Kohoku New Town Comfort Center Minami| 3LDK|Tsuduki-Yokohama茅ケ崎東

  • UR
  • NO KEY MONEY

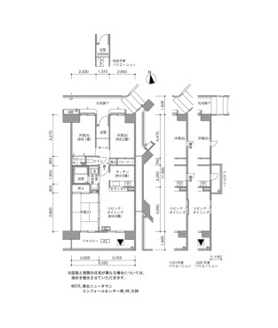
間取り画像

▲ Click to enlarge(All 6 images

Address Chigasaki-Higashi Tsuduki-Yokohama Kanagawa3-5
Access Yokohama Municipal Subway Blue Line Center Minami Station + 11 minutes walk
Yokohama Municipal Subway Green Line Center Kita Station + 22 minutes walk
Rent *****
Security Deposit ***** Gratuity fee *****
Renewal fee ***** Deposit *****
Free rent ***** Common service fee *****
Brokerage fee ***** Total Unit 415
Floor ***** Building age 24年~28年
Layout 3LDK Size(sq. m) 77㎡
Parking 機械 空き台数:58台 料金:10,560円~11,990円
Japanese Site 港北ニュータウン コンフォールセンター南
Building feature
  • CATV
  • Optical wiring
  • Elevator
  • Surveillance camera
Room feature
  • Air conditioner
  • Drop-in stove
  •  Automatic hot water filling function
  •  Intercom with monitor
  • Separate kitchen
  • Bath and toilet are separated
  • Balcony
  • Electronic Bidet
  • Auxiliary Heater

※ Facilities vary by room/building