Comfort Omiya Uetake| 2LDK|Kita-Saitama植竹町

Comfort Omiya Uetake| 2LDK|Kita-Saitama植竹町

  • UR
  • NO KEY MONEY

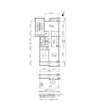
間取り画像

▲ Click to enlarge(All 3 images

Address Uetakechou Kita-Saitama Saitama1-362
Access Tobu Noda Line Kita Omiya Station + 12 minutes walk
JR Utsunomiya Line Toro Station + 13 minutes walk
JR Tohoku-honsen Toro Station + 13 minutes walk
JR Keihin Tohoku Line JK47 Omiya Station 6 minutes bus ( to『富士フイルム大宮事業所入口』 bus stop) + 4 minutes walk
JR Negishi Line Ohmiya Station 6 minutes bus ( to『富士フイルム大宮事業所入口』 bus stop) + 4 minutes walk
Rent 94,600円
Security Deposit 2 months Gratuity fee 0 month
Renewal fee 0 month Deposit -
Free rent - Common service fee 3,800円
Brokerage fee 0 month Total Unit 310
Floor 3F Building age 26年~29年
Layout 2LDK Size(sq. m) 66㎡
Parking 平面 空き台数:2台 料金:11,330円機械 空き台数:25台 料金:10,120円~11,330円近隣駐車場のご案内・アーベイン大宮
Japanese Site コンフォール大宮植竹
Building feature
  • CATV
  • BS
  • Optical wiring
  • Elevator
  • Surveillance camera
Room feature
  • Air conditioner
  •  Automatic hot water filling function
  •  Intercom with monitor
  • Separate kitchen
  • BS Antenna
  • Bath and toilet are separated
  • Balcony
  • Screen Door

※ Facilities vary by room/building