Nara Gakuen-mae Tsurumai| 2DK|Nara鶴舞西町

Nara Gakuen-mae Tsurumai| 2DK|Nara鶴舞西町

  • UR
  • NO KEY MONEY

間取り画像

▲ Click to enlarge(All 3 images

Address Tsurumainishimachi Nara Nara1番・東町1番
Access Kintetsu Nara Line Gakuen Mae Station + 7 minutes walk
Kintetsu Nara Line Ayameike Station + 14 minutes walk
Kintetsu Kyoto Line Takanohara Station 20 minutes bus ( to『鶴舞町一丁目 』 bus stop) + 1 minutes walk
Rent 102,600円
Security Deposit 2 months Gratuity fee 0 month
Renewal fee 0 month Deposit -
Free rent - Common service fee 4,240円
Brokerage fee 0 month Total Unit 922
Floor 6F Building age 16年
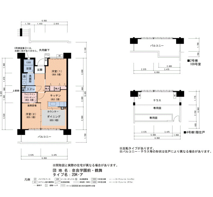
Layout 2DK Size(sq. m) 55㎡
Parking 平面 空き台数:46台 料金:8,800円~9,680円
Japanese Site 奈良学園前・鶴舞
Building feature
  • LAN in residential building
  • Optical wiring
  • Elevator
  • Surveillance camera
Room feature
  •  Automatic hot water filling function
  • Internet ADSL
  • Automatic Lock
  •  Intercom with monitor
  • Floor Heating
  • Bathroom Dryer
  • Bath and toilet are separated
  • Walk-in closet
  • Balcony

※ Facilities vary by room/building