間取り画像
▲ Click to enlarge(All 3 images)
| Address | Tsudanuma Narashino Chiba7-18-1 | ||
|---|---|---|---|
| Access |
JR Sobu Line Rapid
『
JO26 Tsudanuma Station
』
7 minutes bus
( to『谷津パークタウン』 bus stop)
+ 3 minutes walk
Keisei Main Line 『 KS26 Keisei-Tsudanuma Station 』 + 12 minutes walk JR Keiyo Line 『 JE12 Shin-Narashino Station 』 + 22 minutes walk |
||
| Rent | 100,000円 | ||
| Security Deposit | 2 months | Gratuity fee | 0 month |
| Renewal fee | 0 month | Deposit | - |
| Free rent | - | Common service fee | 1,800円 |
| Brokerage fee | 0 month | Total Unit | 74 |
| Floor | 1F | Building age | 1,986 |
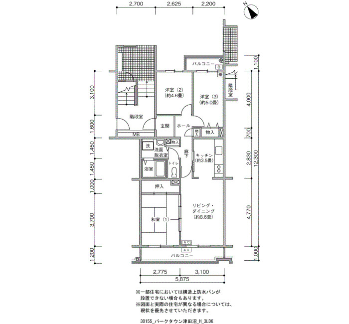
| Layout | 3LDK | Size(sq. m) | 67㎡ |
| Parking | 平面 空き台数:627台 料金:8,800円 | ||
| Japanese Site | パークタウン津田沼(袖ヶ浦(第2次・第3次)) | ||
| Building feature |
|---|
|
|
| Room feature |
|
|
※ Facilities vary by room/building
| Floor plan | Condition | Floor / Story | Rent | Layout Size(sq. m) |
|
|---|---|---|---|---|---|
|
|
Available | 5F | 99,000円 |
3LDK 71㎡ |
Room details
Bookmark |