Urayasu Marina East 21 Kaienno Machi| 4LDK|Urayasu明海

Urayasu Marina East 21 Kaienno Machi| 4LDK|Urayasu明海

  • UR
  • NO KEY MONEY

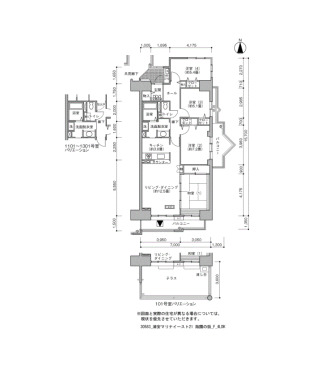
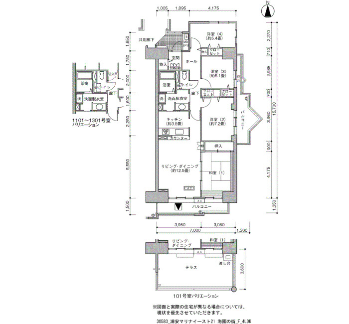
間取り画像

▲ Click to enlarge(All 7 images

Address Akemi Urayasu Chiba3-2海園の街
Access JR Keiyo Line JE08 Shin-Urayasu Station + 25 minutes walk
JR Keiyo Line JE07 Maihama Station + 54 minutes walk
Tokyo Metro Tozai Line T18 Urayasu Station + 54 minutes walk
Rent 240,700円
Security Deposit 2 months Gratuity fee 0 month
Renewal fee 0 month Deposit -
Free rent - Common service fee 7,000円
Brokerage fee 0 month Total Unit 500
Floor 5F Building age 23年~27年
Layout 4LDK Size(sq. m) 103㎡
Parking 平面 空き台数:16台 料金:11,660円自走 空き台数:6台 料金:11,660円~13,200円近隣駐車場のご案内・浦安マリナイースト21フォーラム海風の街・浦安マリナイースト21潮音の街・浦安マリナイースト21望海の街
Japanese Site 浦安マリナイースト21海園の街
Building feature
  • CATV
  • Optical wiring
  • LAN in residential building
  • BS
  • Elevator
  • Surveillance camera
Room feature
  • Drop-in stove
  •  Automatic hot water filling function
  • Separate kitchen
  • Air conditioner
  • Automatic Lock
  •  Intercom with monitor
  • Electronic Bidet
  • Shoes box
  • Bath and toilet are separated
  • Auxiliary Heater
  • Balcony

※ Facilities vary by room/building